Mis favoritos
EspañolEspañol

Casa a reformar con proyecto y licencia en Artá

Artá,
Referencia: 46530
Tipo propiedad
Casa
Dormitorios
3
Baños
3
m2
178
m2
146
274.000 €
Descripción
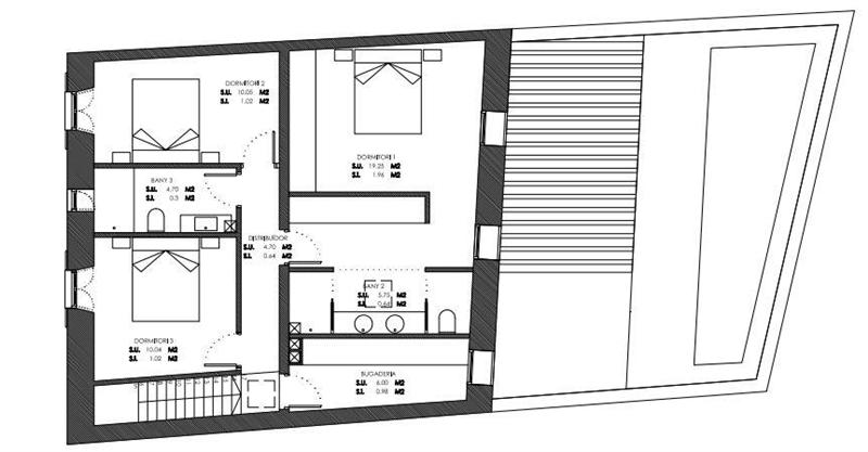
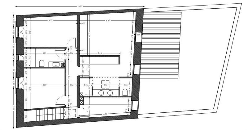
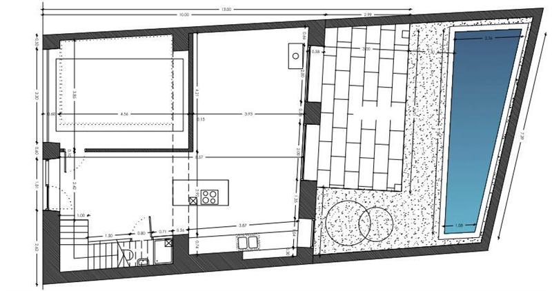
Casa de pueblo a reformar con proyecto y licencia de obra, lo que permite al comprador iniciar de inmediato la reforma sin trámites adicionales. Según el proyecto aprobado, la vivienda de 178m2 aprox. se distribuye en dos plantas. En la planta baja se prevé un luminoso salón recibidor con cocina integrada y un vestíbulo. La primera planta contará con tres dormitorios dobles, 3 baños, coladuria. Garaje, trastero y piscina. Una oportunidad única para disfrutar de la vida en uno de los pueblos más encantadores de Mallorca, combinando el encanto de la arquitectura mallorquina con el confort de un proyecto moderno ya planificado y listo para ejecutar.
Detalles
Tipo de Propiedad Casa
M2 superficie 178 m2
M2 Solar 146 m2
Dormitorios 3
Baños 3
Características
Piscina: Si
Extras
Terraza
Certificacion energética

En trámites

Compartir

Solicitar Información

Balear Invest 1.jpg

¿Quieres publicar
una propiedad?

Deje que nuestro equipo de profesionales le asesoren y  ayuden a vender su vivienda en las mejores condiciones. Le ofrecemos un  servicio integral en el que le asesoraremos a nivel legal y financiero  en cada paso del proceso de venta.

Contacte con nosotros